STUDIO TECNICO NAVALE dott. ing.  PAOLO PONSICCHI

INGEGNERE NAVALE E MECCANICO

NAVAL ARCHITECT AND MARINE ENGINEER

Perro Negro 4

Materiale di costruzione: acciaio

LOA = 45.11 m

Bmax = 48.77 m

DISW =  4400 t

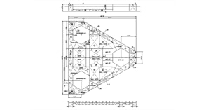
Tipo: unita' autoelevantesi per ricerche petrolifere



Il Perro Negro 4 è un'unità autoelevantesi per ricerche petrolifere. E' dotato di tre gambe che durante gli spostamenti sono completamente alzate. In caso di condimeteo avverse possono essere parzialmente abbassate (fondale permettendo) e/o smontate per aumentare l'altezza metacentrica.

Abbiamo eseguito tutti i calcoli di stabilità previsti dai regolamenti per tali unità.

Il lavoro è stato commissionato dallo Studio Tecnico Marittimo ing. C. Vaccara e C. di Genova.

Building material: steel

LOA = 45.11 m

Bmax = 48.77 m

DISW =  4400 t

Type: jack-up



Perro Negro 4 is a jack-up for offshore petroleum researches. It has three legs that, during field transit and ocean tows, are entirely raised up. In case of bad weather they can be partially lowered (depth allowing) and/or disassembled to increase metacentric height.

We performed all stability calculi requested by rules for such units.

The job was ordered by Studio Tecnico Marittimo ing. C. Vaccara e C. in Genova.